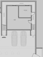
“Residence Rosengarten” home page residenziale download contatti pubblicazioni CAREZZA (BZ) P.I. 00686800210  -   Copyright 2009 - Wurza S.r.l. Zona Produttiva Vurza, 16 - 39055 Pineta di Laives (BZ) Tel.0471/595000       Fax.0471/595048       email: info@wurza.it presentazione ubicazione immagini planimetrie lavori sostenibilità Planimetrie: piano garage planimetria generale piano terra piano primo piano interrato piano garage descrizione tecnica H3 H4 H2 H1